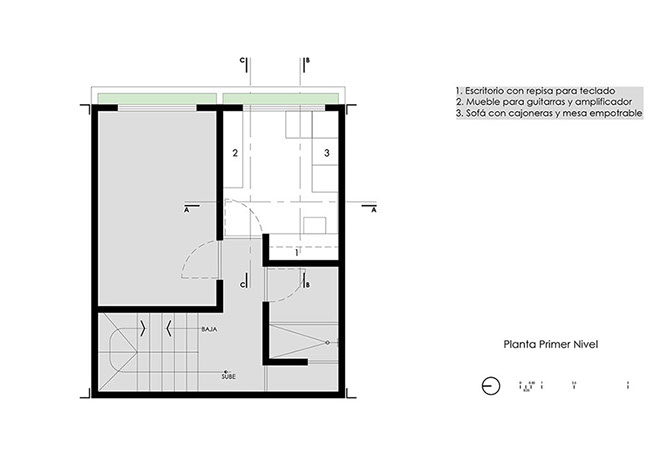
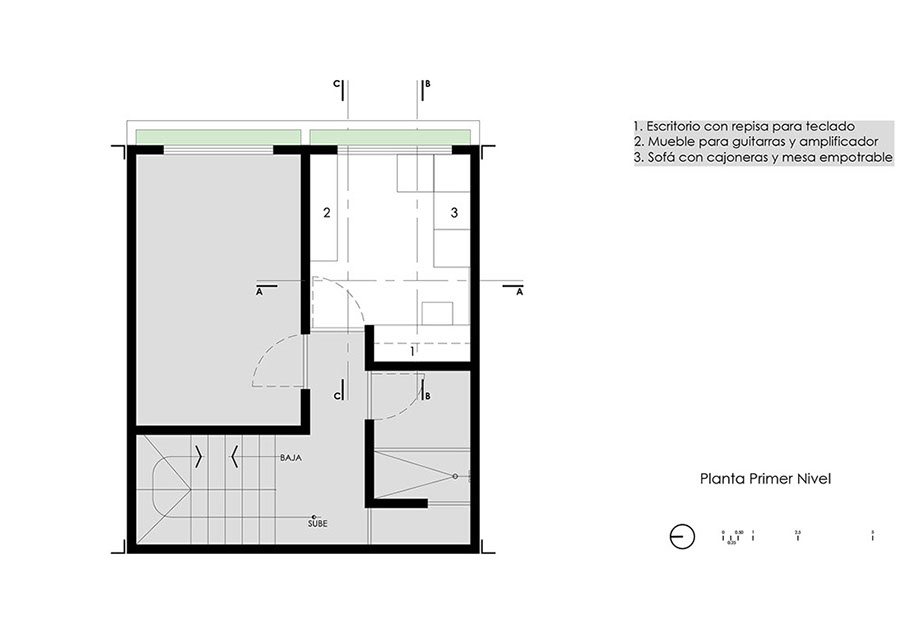
Estudio Casa 13 Adaptación de espacios y diseño de mobiliario Sobre el interiorismo Se logra integrar (en base a los materiales existentes) una paleta con colores neutros que transmiten calma, inspiración y calidez. En el presente proyecto, el cliente nos externó la necesidad de transformar una recamara a un espacio destinado para la educación musical de sus hijos, por lo que se le hizo una propuesta no solo de funcionamiento sino que también de mobiliario en base a sus necesidades, el cual consta de 3 muebles: 1. Escritorio con cajoneras y repisa corrediza para teclado eléctrico 2. Sofá con cajoneras y mesa empotrable 3. Repisa con espacio para colocar guitarras y amplificadores
Estudio Casa 13 Adaptación de espacios y diseño de mobiliario Sobre el interiorismo Se logra integrar (en base a los materiales existentes) una paleta con colores neutros que transmiten calma, inspiración y calidez. En el presente proyecto, el cliente nos externó la necesidad de transformar una recamara a un espacio destinado para la educación musical de sus hijos, por lo que se le hizo una propuesta no solo de funcionamiento sino que también de mobiliario en base a sus necesidades, el cual consta de 3 muebles: 1. Escritorio con cajoneras y repisa corrediza para teclado eléctrico 2. Sofá con cajoneras y mesa empotrable 3. Repisa con espacio para colocar guitarras y amplificadores
Estudio Casa 13 Adaptación de espacios y diseño de mobiliario Sobre el interiorismo Se logra integrar (en base a los materiales existentes) una paleta con colores neutros que transmiten calma, inspiración y calidez. En el presente proyecto, el cliente nos externó la necesidad de transformar una recamara a un espacio destinado para la educación musical de sus hijos, por lo que se le hizo una propuesta no solo de funcionamiento sino que también de mobiliario en base a sus necesidades, el cual consta de 3 muebles: 1. Escritorio con cajoneras y repisa corrediza para teclado eléctrico 2. Sofá con cajoneras y mesa empotrable 3. Repisa con espacio para colocar guitarras y amplificadores
Estudio Casa 13 Adaptación de espacios y diseño de mobiliario Sobre el interiorismo Se logra integrar (en base a los materiales existentes) una paleta con colores neutros que transmiten calma, inspiración y calidez. En el presente proyecto, el cliente nos externó la necesidad de transformar una recamara a un espacio destinado para la educación musical de sus hijos, por lo que se le hizo una propuesta no solo de funcionamiento sino que también de mobiliario en base a sus necesidades, el cual consta de 3 muebles: 1. Escritorio con cajoneras y repisa corrediza para teclado eléctrico 2. Sofá con cajoneras y mesa empotrable 3. Repisa con espacio para colocar guitarras y amplificadores
Estudio Casa 13 Adaptación de espacios y diseño de mobiliario Sobre el interiorismo Se logra integrar (en base a los materiales existentes) una paleta con colores neutros que transmiten calma, inspiración y calidez. En el presente proyecto, el cliente nos externó la necesidad de transformar una recamara a un espacio destinado para la educación musical de sus hijos, por lo que se le hizo una propuesta no solo de funcionamiento sino que también de mobiliario en base a sus necesidades, el cual consta de 3 muebles: 1. Escritorio con cajoneras y repisa corrediza para teclado eléctrico 2. Sofá con cajoneras y mesa empotrable 3. Repisa con espacio para colocar guitarras y amplificadores