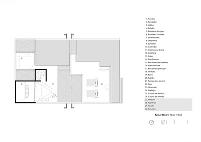
Casa Tres Remodelación y rehabilitación de espacios destinados a la vivienda Casa Tres es un proyecto que surge a partir del respeto por la construcción y modulación existente, re-interpretando y adaptando los espacios en base a las necesidades de los clientes, logrando una vivienda de uso unifamiliar que gira en torno a un patio central, acentuando conceptos y fundamentos propios de la arquitectura mexicana, entendiendo el contexto social y urbano en el que se desarrolla el proyecto.
Casa Tres Remodelación y rehabilitación de espacios destinados a la vivienda Casa Tres es un proyecto que surge a partir del respeto por la construcción y modulación existente, re-interpretando y adaptando los espacios en base a las necesidades de los clientes, logrando una vivienda de uso unifamiliar que gira en torno a un patio central, acentuando conceptos y fundamentos propios de la arquitectura mexicana, entendiendo el contexto social y urbano en el que se desarrolla el proyecto.
Casa Tres Remodelación y rehabilitación de espacios destinados a la vivienda Casa Tres es un proyecto que surge a partir del respeto por la construcción y modulación existente, re-interpretando y adaptando los espacios en base a las necesidades de los clientes, logrando una vivienda de uso unifamiliar que gira en torno a un patio central, acentuando conceptos y fundamentos propios de la arquitectura mexicana, entendiendo el contexto social y urbano en el que se desarrolla el proyecto.
Casa Tres Remodelación y rehabilitación de espacios destinados a la vivienda Casa Tres es un proyecto que surge a partir del respeto por la construcción y modulación existente, re-interpretando y adaptando los espacios en base a las necesidades de los clientes, logrando una vivienda de uso unifamiliar que gira en torno a un patio central, acentuando conceptos y fundamentos propios de la arquitectura mexicana, entendiendo el contexto social y urbano en el que se desarrolla el proyecto.
Casa Tres Remodelación y rehabilitación de espacios destinados a la vivienda Casa Tres es un proyecto que surge a partir del respeto por la construcción y modulación existente, re-interpretando y adaptando los espacios en base a las necesidades de los clientes, logrando una vivienda de uso unifamiliar que gira en torno a un patio central, acentuando conceptos y fundamentos propios de la arquitectura mexicana, entendiendo el contexto social y urbano en el que se desarrolla el proyecto.