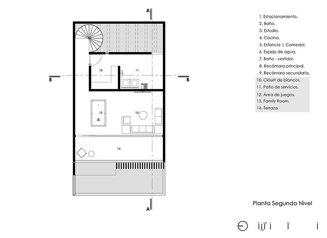
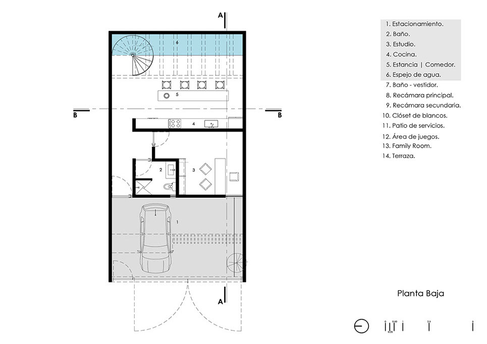
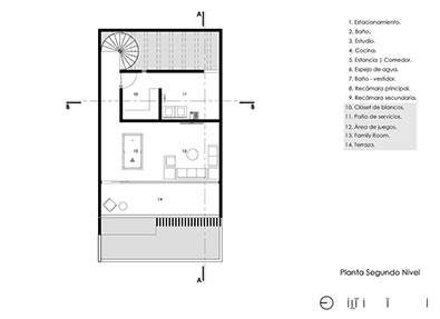
Casa Rojo La calidad espacial como un concepto fundamental en la arquitectura Casa Rojo es un proyecto de carácter habitacional, diseñada en relación directa con la orientación solar. La fachada principal está orientada al poniente, por lo que se busca tener elementos que mitiguen el impacto de asoleamiento y además aporten carácter y composición volumétrica a la obra. Por otra parte se busca conceptualizar la escalera, pues más que cumplir una función de circulación vertical, juega como un elemento de enfoque visual que ambienta los espacios.
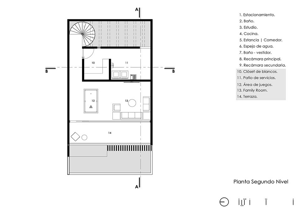
Casa Rojo La calidad espacial como un concepto fundamental en la arquitectura Casa Rojo es un proyecto de carácter habitacional, diseñada en relación directa con la orientación solar. La fachada principal está orientada al poniente, por lo que se busca tener elementos que mitiguen el impacto de asoleamiento y además aporten carácter y composición volumétrica a la obra. Por otra parte se busca conceptualizar la escalera, pues más que cumplir una función de circulación vertical, juega como un elemento de enfoque visual que ambienta los espacios.
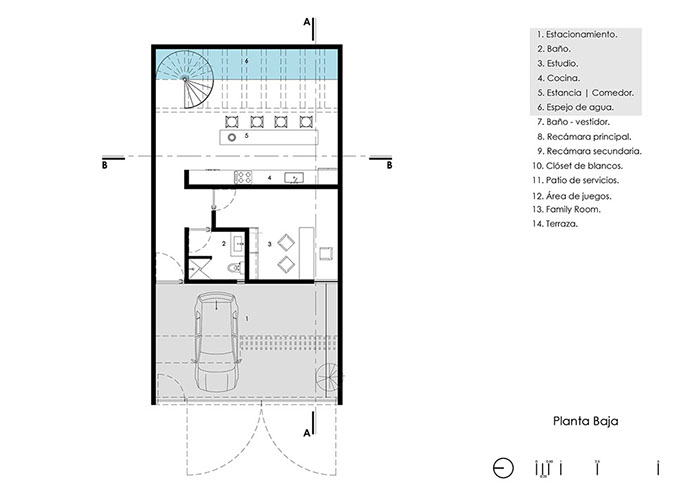
Casa Rojo La calidad espacial como un concepto fundamental en la arquitectura Casa Rojo es un proyecto de carácter habitacional, diseñada en relación directa con la orientación solar. La fachada principal está orientada al poniente, por lo que se busca tener elementos que mitiguen el impacto de asoleamiento y además aporten carácter y composición volumétrica a la obra. Por otra parte se busca conceptualizar la escalera, pues más que cumplir una función de circulación vertical, juega como un elemento de enfoque visual que ambienta los espacios.
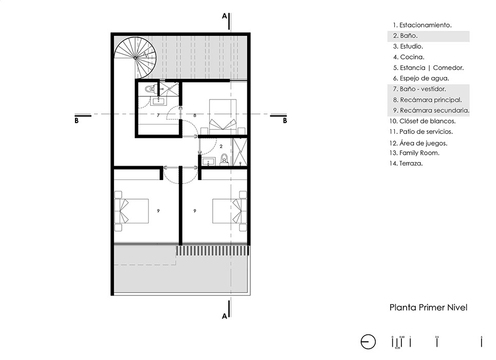
Casa Rojo La calidad espacial como un concepto fundamental en la arquitectura Casa Rojo es un proyecto de carácter habitacional, diseñada en relación directa con la orientación solar. La fachada principal está orientada al poniente, por lo que se busca tener elementos que mitiguen el impacto de asoleamiento y además aporten carácter y composición volumétrica a la obra. Por otra parte se busca conceptualizar la escalera, pues más que cumplir una función de circulación vertical, juega como un elemento de enfoque visual que ambienta los espacios.
Casa Rojo La calidad espacial como un concepto fundamental en la arquitectura Casa Rojo es un proyecto de carácter habitacional, diseñada en relación directa con la orientación solar. La fachada principal está orientada al poniente, por lo que se busca tener elementos que mitiguen el impacto de asoleamiento y además aporten carácter y composición volumétrica a la obra. Por otra parte se busca conceptualizar la escalera, pues más que cumplir una función de circulación vertical, juega como un elemento de enfoque visual que ambienta los espacios.